Kabely ve dveřích
Moderátor: Blue Lanos
Kabely ve dveřích
Ahoj, mám dotaz na zkušenější. Přestalo mi fungovat stahování všech oken. Pojistky ani relátka to nejsou, motorky jsou funkční (ověřeno při vytahování oken přímým napojením na baterku). Mám tedy podezření na zlomený kabel v husím krku u dveří řidiče. Nepodařilo se mi jej ale vypojit ze sloupku, abych mohl dráty povytáhnout a zkontrolovat. Jak na to? Nebo druhá varianta, mám povypojovat konektory ve dveřích a kabely nějak vytáhnout ze dveří? Předem díky za radu!
Tacuma 2.0 CDX r.v.2001
- Reklama
Re: Kabely ve dveřích
Zkoušel jsem to najít v manuálu, ale má asi 1953 stran, třeba budeš úspěšnější https://ulozto.cz/xHwtfAzx/tacuma-manual-pdf heslo tacuma
Když to kladivem, půjde to palicí, něják to tam dostat museli
Když to kladivem, půjde to palicí, něják to tam dostat museli
Daewoo Tacuma r. 2000/1,8 - 72 KW, LPG BRC
Re: Kabely ve dveřích
Odešel ti ovládací panel ve dveřích. Zkus sehnat někoho s Tacumou a prohodit ho.
Hyundai Tuscon 1.6 TGDi 20 years edition alias tučnák III
Kawasaki Versys 1000S pro zábavu
Peugeot Partner alias pešrot.
ex Hyundai Tuscon 1.6 TGDi alias tučnák
ex BMW F 800 GS
ex Ford Transit Connect T200 SportVan 1.8TDCi
ex Daewoo Leganza 2.0 16V CDX
http://planickasystem.webnode.cz
Kawasaki Versys 1000S pro zábavu
Peugeot Partner alias pešrot.
ex Hyundai Tuscon 1.6 TGDi alias tučnák
ex BMW F 800 GS
ex Ford Transit Connect T200 SportVan 1.8TDCi
ex Daewoo Leganza 2.0 16V CDX
http://planickasystem.webnode.cz
Re: Kabely ve dveřích
Zatím zkusím ten manuál, palici nechám jako krajní reseni
Panel asi neseženu, Tacumu nikdo v okolí nemá.
Děkuji ale oběma! Pak dám vědět, jak jsem dopadl a případně i jak na to
Děkuji ale oběma! Pak dám vědět, jak jsem dopadl a případně i jak na to
Tacuma 2.0 CDX r.v.2001
Re: Kabely ve dveřích
Zkus ten manuál, jestli ho nemáš, dával jsem ho na https://uloz.to/xHwtfAzx/tacuma-manual-pdf a heslo je kupodivu : tacuma
Hyundai IX55, V6 3,0 CRDI, automat, 4x4, Yamaha Majesty 125
bylo: Nubira wagon 2.0 CDX 1998 , Pontiac Le Mans (americkej Racer),
Mitsubishi Space Vagon, Favorit, Moskvič 2140, Moskvič 403, Skůtr ČZ 175 typ.502
bylo: Nubira wagon 2.0 CDX 1998 , Pontiac Le Mans (americkej Racer),
Mitsubishi Space Vagon, Favorit, Moskvič 2140, Moskvič 403, Skůtr ČZ 175 typ.502
Re: Kabely ve dveřích
Mně, když začne blbnout stahování oken a není urvaná stahovačka (zatím mi takto ruply 3 ze 4), tak za to může sdružený ovladač v řidičových dveřích (už jednou byl měněn). Zrovna teď je ve stavu, že z něj funguje stahování PZ okna, ale nahoru nikoliv, to naštěstí funguje přímo z PZ dveří.
• EX: Daewoo Leganza 2.0 CDX (12/2002) • černá metalíza • 16V 93kW (T20SED)
• Renault Clio III Grandtour 1.2 (07/2010) • červená • 16V 55kW (D4FD7)
• Renault Megane III Grandtour 1.6 (08/2015) • hnědá metalíza • 16V 81kW (K4MR8)
• Renault Clio III Grandtour 1.2 (07/2010) • červená • 16V 55kW (D4FD7)
• Renault Megane III Grandtour 1.6 (08/2015) • hnědá metalíza • 16V 81kW (K4MR8)
Re: Kabely ve dveřích
Já už si říkám, jestli by nebylo lepší mít švihadla. Samozřejmě mi při tom zůstalo okno dole, tak jsem musel rozebrat dveře a napojit přímo motorek na zdroj
Nestahuje mi nikde nic, ještě že aspoň klima zatím šlape. I když už na ní asi odchází spojka, drhne. Holt starší auto...
Tacuma 2.0 CDX r.v.2001
Re: Kabely ve dveřích
A nemá Tacuma shodné ovladače s Nubirou?
Hyundai Tuscon 1.6 TGDi 20 years edition alias tučnák III
Kawasaki Versys 1000S pro zábavu
Peugeot Partner alias pešrot.
ex Hyundai Tuscon 1.6 TGDi alias tučnák
ex BMW F 800 GS
ex Ford Transit Connect T200 SportVan 1.8TDCi
ex Daewoo Leganza 2.0 16V CDX
http://planickasystem.webnode.cz
Kawasaki Versys 1000S pro zábavu
Peugeot Partner alias pešrot.
ex Hyundai Tuscon 1.6 TGDi alias tučnák
ex BMW F 800 GS
ex Ford Transit Connect T200 SportVan 1.8TDCi
ex Daewoo Leganza 2.0 16V CDX
http://planickasystem.webnode.cz
Re: Kabely ve dveřích
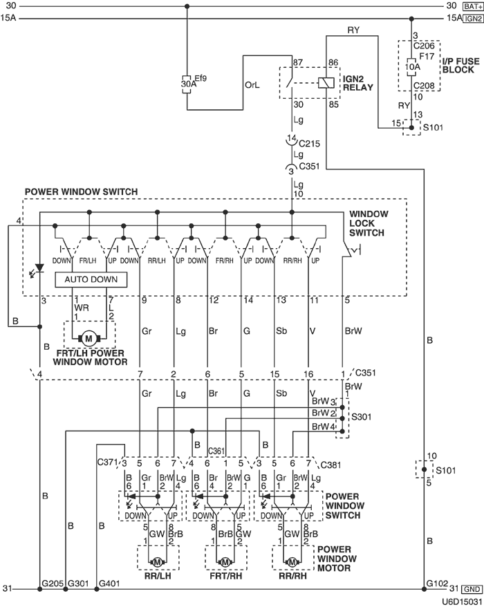
Mě kdysi zlobilo stahování u spolujezdce a zjistil jsem, že na to má vliv úhel otevření dveří u řidiče, takže zlomený kabel v tom ohybu, co jde od konektoru C351 do dveří řidiče.
Ke kabelům a konektoru se dá dostat, když se odmontují dveře, pak se vycvakne konektor. Pozor, ty dveře jsou dost těžký, chce to pomocníka, jinak si odřete spodní hranu nebo něco jiného, záleží na nešikovnosti.
Původně jsem to chtěl opravit novým kabelem, což jsem dělal u pátých dveří, ale bylo to dost blízko konektoru, tak jsem to jen proletoval a zaizoloval, drží to už pár let.
Pokud nesvítí ani podsvícení ovladačů, bude problém s plusem nebo kostrou, chce to měřit, viz. schéma.
Ke kabelům a konektoru se dá dostat, když se odmontují dveře, pak se vycvakne konektor. Pozor, ty dveře jsou dost těžký, chce to pomocníka, jinak si odřete spodní hranu nebo něco jiného, záleží na nešikovnosti.
Původně jsem to chtěl opravit novým kabelem, což jsem dělal u pátých dveří, ale bylo to dost blízko konektoru, tak jsem to jen proletoval a zaizoloval, drží to už pár let.
Pokud nesvítí ani podsvícení ovladačů, bude problém s plusem nebo kostrou, chce to měřit, viz. schéma.
Citroen C4 Grand Picasso 1.8i, 92kW
Daewoo Tacuma 1.8i, 66kW
Daewoo Espero 1.8i, 70kW ...opustilo nás v nedojetých 133tkm
Daewoo Tacuma 1.8i, 66kW
Daewoo Espero 1.8i, 70kW ...opustilo nás v nedojetých 133tkm