Stránka 4 z 5
Re: Diaľkové ovládanie, alarm a centrál
Napsal: ned srp 15, 2010 17:43
od Dark69
peto153 : ako si potom napjil DO aby fungovalo?? Na povodny central??
Mam zaujem... Dik
Re: Diaľkové ovládanie, alarm a centrál
Napsal: ned srp 15, 2010 19:38
od peto153
Dark69, sevas, napojil som to na pôvodný centrál. Máš k tomu 2dialkové ovládače, riadiacu jednotku a schému zapojenia podľa ktorej to veľmi jednoducho pripojíš na hocijaký centrál ( ja som si to zapojil za cca 3Omin ). Len planžety si musíš urobiť (prispôsobiť) sám, lebo na daewoo nemajú originál planžety + prehodiť čip.
Re: Diaľkové ovládanie, alarm a centrál
Napsal: ned srp 15, 2010 19:54
od Dark69
A kde si to kupil??? Mozes poslat link?
Re: Diaľkové ovládanie, alarm a centrál
Napsal: ned srp 15, 2010 20:55
od peto153
Dark69, dá sa to kúpiť (objednať) v každej mototoechne - má to výhodu a to cena podľa známostí
Alebo onjednať na nete napr. tu:
http://www.autoomega.sk/index.php?id_se ... radenie=10.
Re: Diaľkové ovládanie, alarm a centrál
Napsal: úte srp 31, 2010 18:56
od Alexnext65
Nazdar.Shcema na alarm neviem ale na centralne uzamykanie som sa riadil s negativnym zapojeniem.
Kód: Vybrat vše
http://www.alarmshop.sk/pdf/spy_211_modul_cz.pdf
Kable som spajal ako je krycia lista pre kable na vodicovej strane.
Peto153 je to pekny kluc ale skoda ze za brusenie kluca do auta stoji 50€ plus imobilizer,tak som sa
musel uspokojit iba dialkovym ovladacom a vyzera takto
Kód: Vybrat vše
http://www.alarmshop.sk/spy-209-b-modul-cz-p-878.html
a som spokojny.
Re: Diaľkové ovládanie, alarm a centrál
Napsal: čtv zář 02, 2010 11:26
od peto153
Alexnext65 mňa vyšlo brúsenie kľúča 8€ (16€ oba)

Re: Diaľkové ovládanie, alarm a centrál
Napsal: pon črc 02, 2012 20:24
od maco-lv
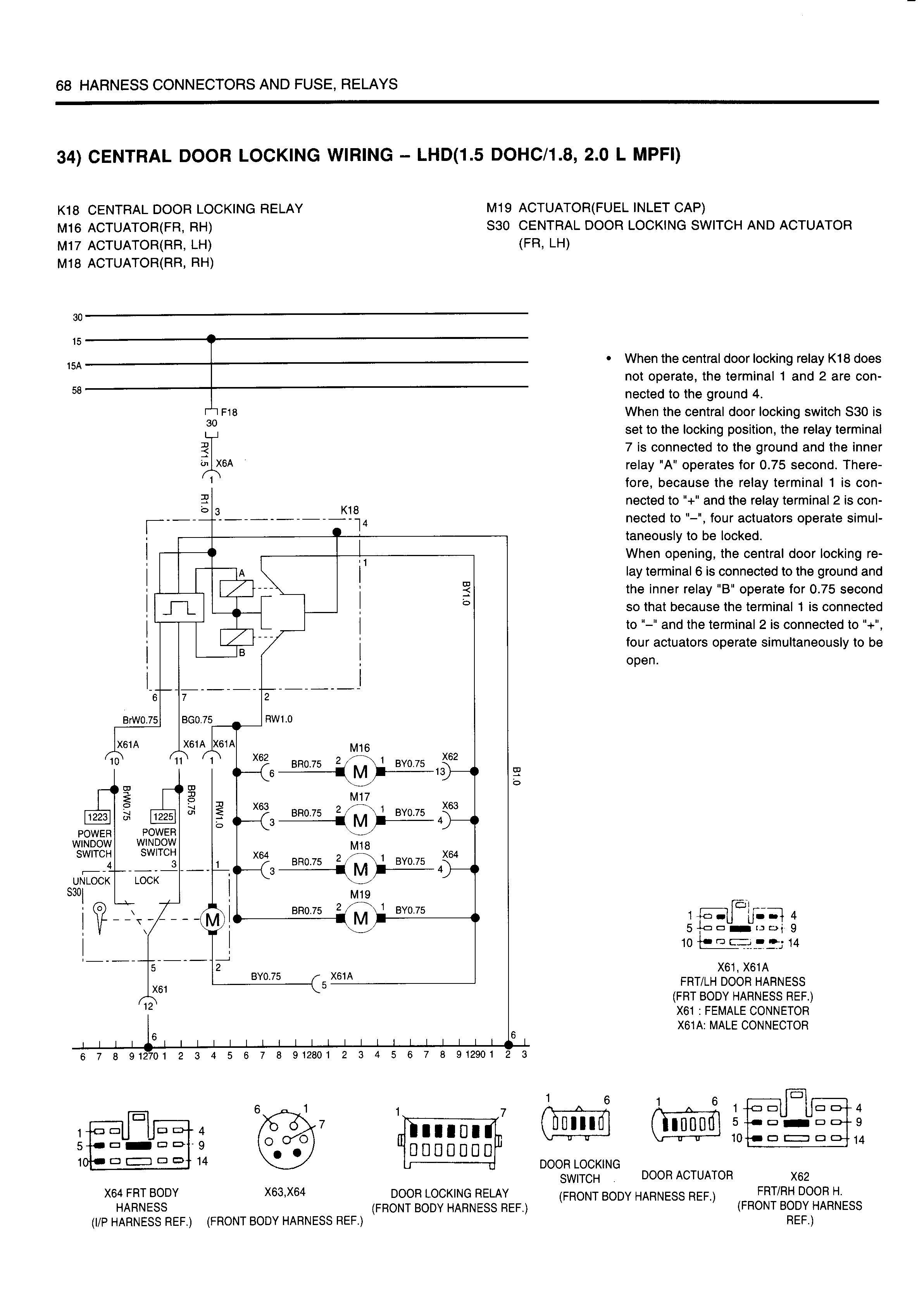
CAVTE NEVIETE KDA SA NAPAJA DIALKOVE OVLADANIE NA CENTRAL? A KTORE FARBY KABLOV DAKUJEM
Re: Diaľkové ovládanie, alarm a centrál
Napsal: pon črc 02, 2012 20:42
od ppp
Nemas schemu? Ak nie tak tu je v english:
farby by som nebral ako dogmu mne vsetky nesuhlasia.
L - modra
Y - zlta
G - zelena
W - biela
VIO - fialova
Br - hneda
Gr - siva
R - cervena
B - cierna
druhe oznacenie farby je pasik
Re: Diaľkové ovládanie, alarm a centrál
Napsal: pon črc 02, 2012 20:55
od maco-lv
ak som to dopbre pochopil tak na ovorenie je hnedobiely a na zatvorenie zeleny?
Re: Diaľkové ovládanie, alarm a centrál
Napsal: pon črc 02, 2012 22:16
od ppp
Pardon, ja som somar, nevsimol som si co za somarinu som sem dal. Najprv som sem dal schemu stahovania okien, ale uz som to napravil.
Cize ak chces odomknut alebo zamknut, tak musis ukostrit 6 alebo 7 na krabicke centralu alebo niekde na ceste kable iduce z pinov 6 a 7 z jednotky centralu.
Napriklad ich ku kostre mozes pripajat spinacimi relatkami co byvaju v krabicke prijmaca dialkoveho ovladania.
Pozor na to, ono to bude fungovat tusim aj ked ich pripojis k plus ale naopak, ak si to teda dobre pamatam, na nubire ktoru si otec kupil to zapojil nejaky umelec takto naopak. Sice to slapalo ale zralo 100mA z baterky v kuse.
Re: Diaľkové ovládanie, alarm a centrál
Napsal: úte črc 03, 2012 20:44
od maco-lv
tak piny 6a 7 napokim na ten modul dialkoveho ovladaca dik
Re: Diaľkové ovládanie, alarm a centrál
Napsal: ned říj 14, 2012 17:36
od maco-lv
A neviete presner ktory je na otvaranie a ktory na zatvaranie? zajtra by som sa chcel pustit do toho lebo uz ma serie mam ho napojeny na vodicov motorcek ale zrejme mu to skodi:P alebo blbne
Re: Diaľkové ovládanie, alarm a centrál
Napsal: pát lis 02, 2012 19:20
od maco-lv
Neviete kde by mohol byt problem ak sa mi neotvaraju vsetky dvere raz sa otvoria raz nie bude to v kabloch?
Re: Diaľkové ovládanie, alarm a centrál
Napsal: pát lis 02, 2012 20:03
od smire666
Isteže, môže byť hniloba v prechodkách medzi kasňou a dverami...
Re: Diaľkové ovládanie, alarm a centrál
Napsal: sob lis 03, 2012 07:42
od maco-lv
no dobre co ma hniloba z kablami pokial nieje porusena izolacia? jedine ze by bola porusena izolacia alebo polamene kable.
Vyzara to tak ze asi prekablovat a to sa mi nejak nechce
